My Search Tools:

$439,900 - 3881 Leesway Cir, Pensacola

4
Bedrooms
2
Baths
2,086
SQ. Feet
0.22
Acres

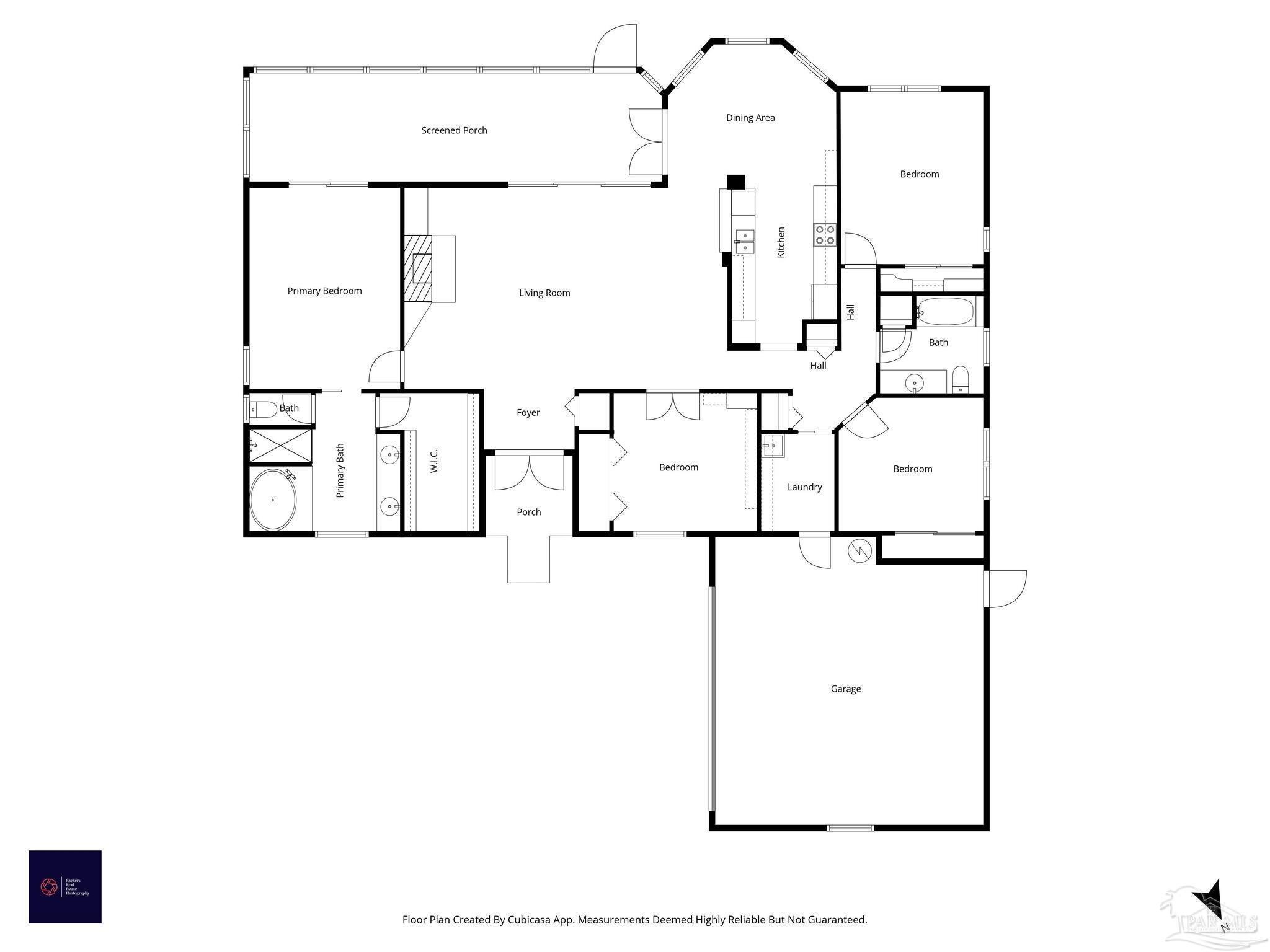
Discover the perfect blend of comfort and functionality in this 4-bedroom, 2-bathroom home offering 2,096 square feet of inviting living space on a .22-acre lot. The open-concept layout features wood-look LVP flooring throughout the main living areas, high ceilings, and stylish track lighting that enhances the bright, airy feel. The spacious living and dining areas flow seamlessly into the kitchen, which is surrounded by windows that fill the space with natural light. A chandelier anchors the dining area, creating a warm atmosphere for family gatherings or entertaining. One front bedroom offers ideal flexibility as a home office, guest room, or creative space. The primary suite is a peaceful retreat with sliding glass doors that open directly to the screened porch—perfect for enjoying your morning coffee. The ensuite bathroom features double vanities, a soaking tub, and a separate standing shower. The home’s split floor plan provides privacy, with the additional bedrooms and a full bath conveniently located on the opposite wing. Enjoy outdoor living in the shaded backyard with mature trees, a yard building for extra storage, and a screened porch for relaxing year-round. Additional features include a 2-car garage, a 5-year-old roof, and a 1-year-old HVAC system—offering peace of mind for years to come. Nestled in a quiet neighborhood with no HOA, this home offers both freedom and comfort in a well-maintained setting.

Essential Information

  • MLS® #:
    672437
  • Price:
    $439,900
  • Bedrooms:
    4
  • Bathrooms:
    2.00
  • Full Baths:
    2
  • Square Footage:
    2,086
  • Acres:
    0.22
  • Year Built:
    1988
  • Type:
    Residential
  • Sub-Type:
    Single Family Residence
  • Style:
    Traditional
  • Status:
    Active

Community Information

  • Address:
    3881 Leesway Cir
  • Subdivision:
    Hidden Oaks
  • City:
    Pensacola
  • County:
    Escambia - Fl
  • State:
    FL
  • Zip Code:
    32504

Amenities

  • Parking Spaces:
    2
  • Parking:
    2 Car Garage
  • Garage Spaces:
    2
  • Has Pool:
    Yes
  • Pool:
    None

Interior

  • Interior Features:
    Baseboards, Bookcases, High Speed Internet, Track Lighting
  • Appliances:
    Gas Water Heater, Built In Microwave, Dishwasher, Refrigerator
  • Heating:
    Central, Fireplace(s)
  • Cooling:
    Central Air, Ceiling Fan(s)
  • Fireplace:
    Yes
  • # of Stories:
    1
  • Stories:
    One

Exterior

  • Exterior Features:
    Fire Pit, Sprinkler
  • Lot Description:
    Central Access
  • Windows:
    Double Pane Windows
  • Roof:
    Shingle
  • Foundation:
    Slab

School Information

  • Elementary:
    Cordova Park
  • Middle:
    WORKMAN
  • High:
    Washington

Additional Information

  • Zoning:
    Res Single

Listing Details

  • Listing Office:
    Levin Rinke Realty

Copyright© 2025 by the Multiple Listing Service of the Pensacola Association of REALTORS®. This information is believed to be accurate but is not guaranteed. Subject to verification by all parties. This data is copyrighted and may not be transmitted, retransmitted, copied, framed, repurposed, or altered in any way for any other site, individual and/or purpose without the express written permission of the Multiple Listing Service of the Pensacola Association of REALTORS®. Florida recognizes single and transaction agency relationships. Information Deemed Reliable But Not Guaranteed. Any use of search facilities of data on this site, other than by a consumer looking to purchase real estate, is prohibited.